Reinforced Concrete Beams
Carbon Fiber Reinforced

Select language



















Carbon Fiber Reinforced
Among them, the design concrete strength of a beam on the fourth floor is C30, and the testing unit uses the rebound method to detect the compressive strength of the concrete beam: 24.3MPa, and the concrete compressive strength of the beam is judged to be unqualified. It is planned to use carbon fiber reinforcement for reinforcement.


Project Overview
A certain building of a certain project is a cast-in-place reinforced concrete frame shear wall structure, the building has one underground floor, 19 floors above the ground, and the building height is 54.9m. Among them, the design concrete strength of a beam on the fourth floor is C30, and the testing unit uses the rebound method to detect the compressive strength of the concrete beam: 24.3MPa, and the concrete compressive strength of the beam is judged to be unqualified. It is planned to use carbon fiber reinforcement for reinforcement.
The frame beams are planned to be reinforced by carbon fiber reinforcement. Advantages of strengthening flexural structure with carbon fiber reinforcement method:
(1) High strength (the strength is about 10 times that of ordinary steel bars), and the effect is good;
(2) Light weight, basically no increase in structural weight and cross-sectional size, good flexibility, easy to cut, and a wide range of applications;
(3) After reinforcement, the bearing capacity, corrosion resistance and durability of the structure can be greatly improved;
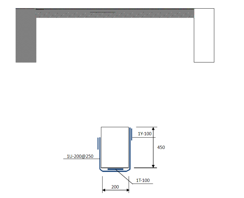
Beam reinforcement
Take the bottom of the beam and paste the carbon fiber width 100mm
Beam oblique section reinforcement
Select secondary carbon fiber cloth 0.111mm thick, 200mm wide, one layer, 250mm spacing

Description of beam reinforcement with carbon fiber:
1. The reinforcement material is made of grade-two high-strength carbon fiber cloth, 200g/m2, 0.111mm thick;
2. The carbon fiber glue adopts Grade A glue;
3. The edges and corners of the beam are polished to R≥20mm rounded corners;
A layer of 100mm wide carbon fiber cloth is pasted on the bottom of the beam. The U-shaped hoop carbon fiber cloth is 200mm wide, with a spacing of 250mm, with a 100mm wide carbon fiber cloth layering on each side.
Website Map | Corporate | Contact | Privacy